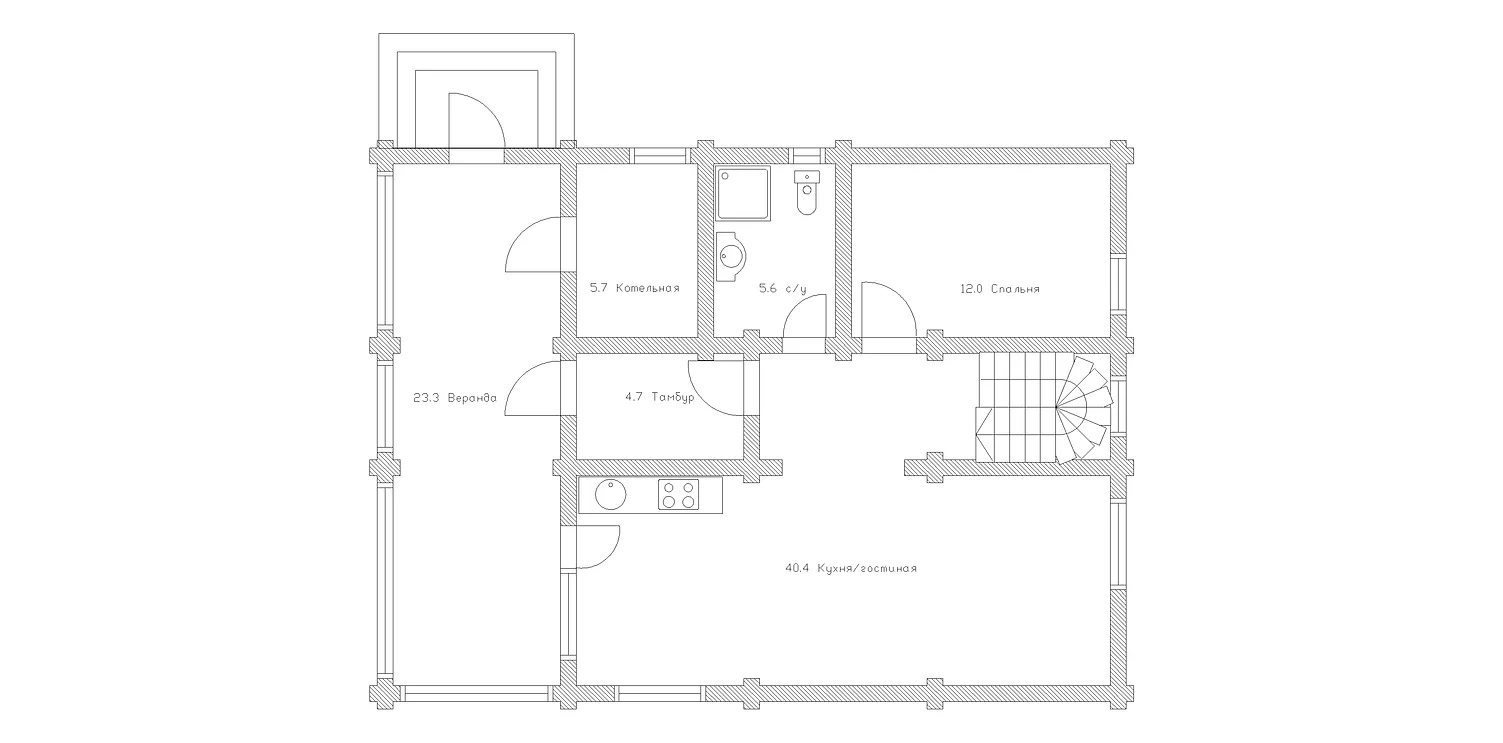
Проект дома 8.8х12 DD 182,2
Общая площадь – 182.2м2
Диметр оцилиндрованного бревна – 260 мм.
Тип – Двухэтажный проект
Стоимость фундамента от 349 000 руб.
Стоимость сруба от 2 189 000 руб.
Проект может быть выполнен в бревне другого диаметра, в рубленом или каркасном исполнении, с соответствующим изменением стоимости.
В стоимость входит:
- Документация для производства;
- Изготовление;
- Доставка в Московскую область;
- Разгрузка;
- Установка на готовый фундамент дома выбранного размера, согласно проекта;
- Установка балок перекрытия цоколя, с укладкой «чернового» пола;
- Установка балок перекрытия первого этажа;
- Установка стропильной системы со слоем гидро-пароизоляции, обрешеткой, контр обрешёткой, рубероидом.
Сборка ведется с прокладкой льноволокна между венцами, бревна крепятся между собой деревянными нагелями.
Материалы:
- Балки перекрытий 100х200х6000;
- Стропила 50х200х6000;
- Обрешетка 25х150х6000;
- «черновой» пол 25х150х6000;
Дополнительная информация
Обработка антисептиком «Neomid 440» или «Сенеж ХФ» (только в теплое время года, при окружающей температуре более +7 С);
Фундамент – свайный с ленточным армированным ростверком на песчаной подушке, с перегородками под дополнительные стены, цоколь 0.5 м, ширина ленты 0,4м, песчаная подушка 0.2 м;
Параметры свай: D=0.1 8м, H=1.5 м;
Данные параметры фундамента лучше всего подходят для почв Московского региона. Все работы первого этапа будут завершены за 1,5-2 месяца.
Отделочные работы могут быть начаты по истечении не менее 6 мес. (выстаивание сруба) после завершения первого этапа и займут от 2 мес.
Отделочные работы оцениваются от 9000 до 14000 руб./ м2 общей площади и рассчитываются индивидуально перед началом выполнения работ.
Если Вы не нашли интересующий вариант проекта на нашем сайте,
пришлите нам ссылку на тот, который вам интересен, мы сделаем расчет и свяжемся с Вами.


