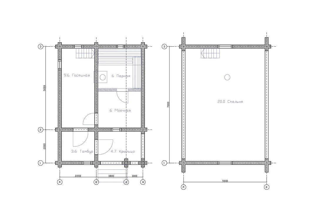
Проект бани 5х7 DВ-49,9
Общая площадь – 49.9 м.2
Диаметр оцилиндрованного бревна – 200 мм.
Цена сруба – от 409 000 руб.
Цена фундамента - от 168 000 руб.
Проект может быть выполнен в бревне другого диаметра, в рубленом или каркасном исполнении, с соответствующим изменением стоимости.
В стоимость входит:
- Документация для производства;
- Изготовление;
- Доставка в Московскую область;
- Разгрузка;
- Установка на готовый фундамент дома выбранного размера, согласно проекта;
- Установка балок перекрытия цоколя, с укладкой «чернового» пола;
- Установка балок перекрытия первого этажа;
- Установка стропильной системы со слоем гидро-пароизоляции, обрешеткой, контр обрешёткой, рубероидом.
Сборка ведется с прокладкой льноволокна между венцами, бревна крепятся между собой деревянными нагелями.
Материалы:
- Балки перекрытий 100х200х6000;
- Стропила 50х200х6000;
- Обрешетка 25х150х6000;
- «черновой» пол 25х150х6000;
- Обработка антисептиком «Neomid 440» или «Сенеж ХФ» (только в теплое время года, при окружающей температуре более +7 С);
Дополнительная информация
Фундамент – свайный с ленточным армированным ростверком на песчаной подушке, с перегородками под дополнительные стены, цоколь 0,5м, ширина ленты 0,4м, песчаная подушка 0,2м;
Параметры свай: D=0,18м, H=1,5м;
Данные параметры фундамента лучше всего подходят для почв Московского региона.
Все работы первого этапа будут завершены за 1,5-2 месяца.
Отделочные работы могут быть начаты по истечении не менее 6 мес. (выстаивание сруба) после завершения первого этапа и займут от 2 мес.
Отделочные работы оцениваются от 9000 до 14000 руб./ м2 общей площади и рассчитываются индивидуально перед началом выполнения работ.
Если Вы не нашли интересующий вариант проекта на нашем сайте,
пришлите нам ссылку на тот, который вам интересен, мы сделаем расчет и свяжемся с Вами.
